

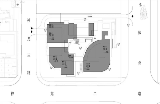
招商武汉城建花园里项目E地块原建筑功能单一,起初仅以销售展厅作服务空间使用。伴随着复合型商业街区整体开发进程的推进,其原有的封闭形态、弱化引力与滞后规划,已难以支撑辐射武汉西南片区的高品质消费场景构建,亦无法匹配周边密集产业、办公人口及社区居民的多元化生活需求。
2025年7月18日,更新改造后的E地块正式对外开放,无论空间还是业态都呈现出全新的面貌与升级。此次改造,设计在仅8587.10㎡的限制空间内,精准实现了业态精准定位、场景体验升级、客群年轻化转型、自然空间渗透一体化等多维度的空间效益突破。


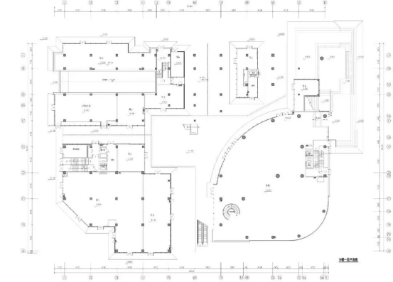
为打破原有封闭式商业盒子的隔离状态,设计首要策略是重构各层间孤立的空间连接关系,构建立体化的“垂直街区”系统。同时,锚定项目作为城市绿洲客厅与活力消费目的地的定位,设计将核心中庭(39m X 24m)塑造为弹性“柔软内核”,以承载未来多元化的社群运营活动与事件。



一个好的社交型商业空间,和它本身空间呈现的开放和灵活性是息息相关的,同时它也能为消费者的社交行为需求提供多元的选择。设计在构思的过程中提出了将“街道”这一最丰富和多元的社交空间要素内化于建筑当中的想法,通过重塑场地边界景观、拆解部分底层商业体量,并围绕核心中庭,将一条百米级“回形街道”立体化嵌入商业各层,形成自地面至顶层的连续性垂直游逛动线。此动线超越了单纯交通功能,形塑了空间感知路径。

△空间轴侧分析图
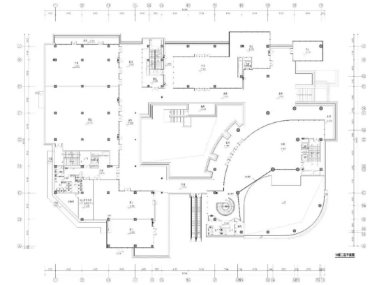
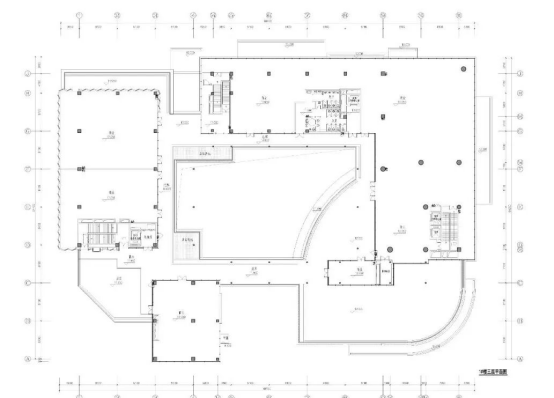
由入口阶梯、中庭步梯及自动扶梯交织而成的三维洄游流线,编织起多层级的空间网络,有效落实了“多首层”策略,显著提升高区可达性,规避商业死角的产生。此举不仅为商户提供了充分展示空间个性与品牌形象的可能性,更促使空间布局由二维平面向三维立体转化,在提升空间使用效率的同时,强化了空间的层次感与互动潜能。




中庭作为商业建筑的核心意象节点,是营造独特场所氛围的关键。设计历经反复推演,最终采用“界面内退”策略重塑中庭的可驻留性。有别于街区的线性游逛体验,尺度宜人(39m X 24m)的中庭被定位为一个“趣味丰盈的空间容器”。通过局部空间的内退切割,原始“大盒子”体量被分解为更富亲和力的复式小空间单元。最终呈现的空间尺度更具人情味,其漫游体验相较于传统封闭式商业空间显著提升了舒适度与探索趣味。

加之大量植物景观的引入,有效柔化了硬质界面的冰冷感,最大化实现了自然元素在都市商业空间中的无缝渗透。这一兼具集约与适应性的核心场景,为未来多元化的社会公共活动提供了高品质的空间承载。置身其中,消费行为伴随店肆与庭院的景观交替呈现,消解了传统购物空间的局促感,代之以行走间的闲适、松弛及视野开阖带来的感官惊喜。



基地区域大面积的绿地资源为设计提供了契机。设计旨在突破传统封闭商业盒子的形态桎梏,采用底层开放的布局形式,使绿地景观从建筑陪衬跃升为主导性空间元素。改造策略以“公园中的礼盒”为核心概念,将建筑底层充分向公园景观开放,并通过增设檐下空间、灰空间等游逛驻留节点,营造兼具生机与惬意感的空间氛围。



原有封闭结构阻隔了建筑与外部环境及人流的充分互动。设计通过模糊场地边界、重构人流动线,促使内向封闭的空间形态蜕变为外向开敞的半围合式生态艺术公园空间。面向公园敞开的“空间礼盒”非生硬叠加,而是通过底层架空、立体退台、屋顶绿化、外摆空间延伸等手法,促成建筑体量与公园景观的有机对话。绿意蔓延至建筑台阶、平台、立面乃至屋顶,达成“建筑生长于公园”的空间意向。此举逆转了常规的“建筑主体、景观点缀”范式,重塑了空间的主从权重。

首层幕墙的序列化开启、中间通道的尺度扩张,不仅是“商业+公园”的简单叠加,更促使两者在空间界面、人流组织、功能业态与视觉体验层面实现深层次的交互渗透。叠加自然曲折的路径、丰富的空间层次、精致的商业环境与多样的公共活动,整体呈现出一种松弛、可探索、富有生活气息与社区归属感的独特城市空间体验。



为塑造鲜明的入口标识性,设计在建筑主入口设置“阶梯剧场”式开放平台。结合悬挑雨棚与玻璃盒子的体量造型,形成兼具遮阳避雨功能的半户外休憩社交空间。小尺度广场、活力绿地、公共座椅与自然绿植,有效吸引人流驻足停留,营造闲适的街区社交氛围。


该设计突破了传统商业盒子的封闭性,以更开放的姿态形成空间邀请。入口大台阶同时巧妙地引导人流由一层上升至二层,并可向内折返至一层后端区域。该空间在上部结构的覆盖下形成风雨无阻、布局自由、功能可变的庇护性公共场域,业已成为项目中极具活力的核心节点,自然催生着丰富有趣的自发性社群活动。


屋顶露台被视为商业空间向上维度的价值拓展。原屋顶空间消极闲置、利用率低下。改造后,其不仅转化为商业体内宝贵的休闲空间,更凭借高视点景观优势及“半开放”的灵活属性,满足新一代消费者对场景体验的极致追求。
未来可拓展为屋顶花园、空中餐厅、户外运动场、潮流市集等,不仅延展了商业功能边界,亦为城市天际线增添了灵动的一笔。



建筑改造秉持轻量化原则,体现在外围幕墙及内庭材料的选用策略上:尊重原有肌理,避免过度设计与重复投入。外围主体采用玻璃幕墙,以简洁利落的线条语言塑造通透明亮的视觉基调。内部空间则在统一基调下,通过聚碳酸酯(PC)阳光板、钢构支柱、木纹转印铝板等材料的组合应用,实现了丰富多元的建构表达。设计力求在清晰统一的逻辑框架下,演绎出富有变化的精致细节,奠定项目年轻活力的空间基调。



“场景升级”的空间思维转向,旨在实现公园化、强社交、年轻化、潮流化的形式表达。设计基于此趋势,在材料选择与氛围营造初始阶段即摒弃坚硬冰冷的传统方案。
面对消费者对“高审美品位”的需求,设计重点在于保障整体空间调性统一的前提下,细腻调整各单体建筑立面细节,整体呈现“一店一特色”的品牌识别度(因项目处于开业前期,店铺整体呈现仍在更新中),空间体验相较于之前更趋轻松自然与活力气息。空间形态与视觉符号兼具整体秩序感与个体差异性,营造出一种“可沉浸的叙事性场景”。


店铺采用开放设计模式,设计以“适度留白”为策略,将店招界面的具体形象交由商户与项目运营方共同参与创造。商户可在统一的结构框架内,依据品牌调性进行个性化演绎。商业体自身通过与品牌主理人共建的模式,达成个性展示与整体协调的有机统一。
在整体统筹下,作为空间活力触媒的外摆空间,有效拓展了室内空间的边界,模糊了内外空间的物理界限,强化了使用者的自在感与松弛氛围。此外,业态规划与社群运营在前期即深度嵌入空间规划,考量亲子、零售、餐饮、轻咖、潮玩、运动、设计师品牌等多元业态在不同场景中的互动共生。这使建筑更具生命力,同时创造了都市日常休闲轻度假的活力氛围,深化了商业体验的沉浸感。






整体来看,招商武汉城建花园里E地块更新项目,已超越非标准化商业项目范畴。其作为辐射蔡甸、汉阳乃至武汉西南片区的关键触媒,通过轻量化空间更新、精准化业态升级与体验式社群互动的成功实践,为区域高品质商业发展注入了转型动能。该项目的探索,不仅在存量空间更新与轻量化改造策略层面提供了实践范本,更显著拓展了武汉非标商业未来形态的多元想象空间。

///
技术图纸







///
项目信息
项目地点:武汉市经济技术开发区
建筑面积:8479.32㎡
业主单位:招商蛇口武汉公司
建筑设计:青墨建筑设计
幕墙设计:弗斯特幕墙
景观设计:日清景观
室内设计:超级平常空间设计
施工图设计:上海UDG联创
摄影版权:青墨建筑设计